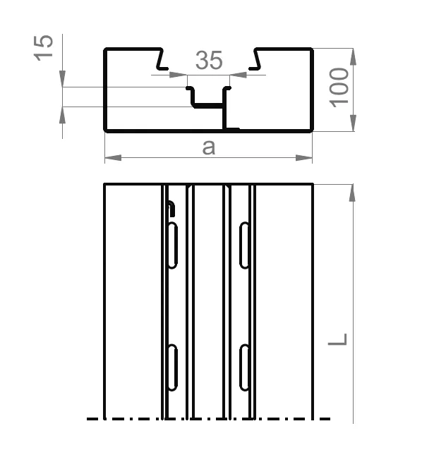
Канал настінний (лакований) KS170H100/2 (910117) Виробник: BAKS Артикул: KS170H100/2 Ціна за дзвінком Кількість: Замовити Індивідуальний список бажань ОК Додати до списку бажань Додати до списку порівняння Повідомити друга Прокладання електричних, телекомунікаційних та комп'ютерних кабельних трас у приміщеннях. Матеріал SCE - електролітично оцинкована сталь PN-EN 10152 Доступні варіанти оздоблення: L - фарбування у стандартний колір RAL Характеристики товару Назва атрибуту Значення атрибуту Системи кабельних трас Типи елементів канал Висота борта H100 Товщина листа 1.0 мм Властивості матеріалу L - фарбування в стандартний колір RAL Вага 1м [кг] 3.75 kg Кількість у коробці [шт/м] 2 / 4 pcs. / m. Довжина L [мм] 2 000 mm Ширина a [мм] 170
Прокладання електричних, телекомунікаційних та комп'ютерних кабельних трас у приміщеннях. Матеріал SCE - електролітично оцинкована сталь PN-EN 10152 Доступні варіанти оздоблення: L - фарбування у стандартний колір RAL